Rigolă carosabilă MEGA DN500 (H460 - H610 mm) din fibrobeton, cu grătare din fontă ductilă F900
Rigolă carosabilă MEGA DN500 (H460 - H610 mm) din fibrobeton, cu grătare din fontă ductilă F900
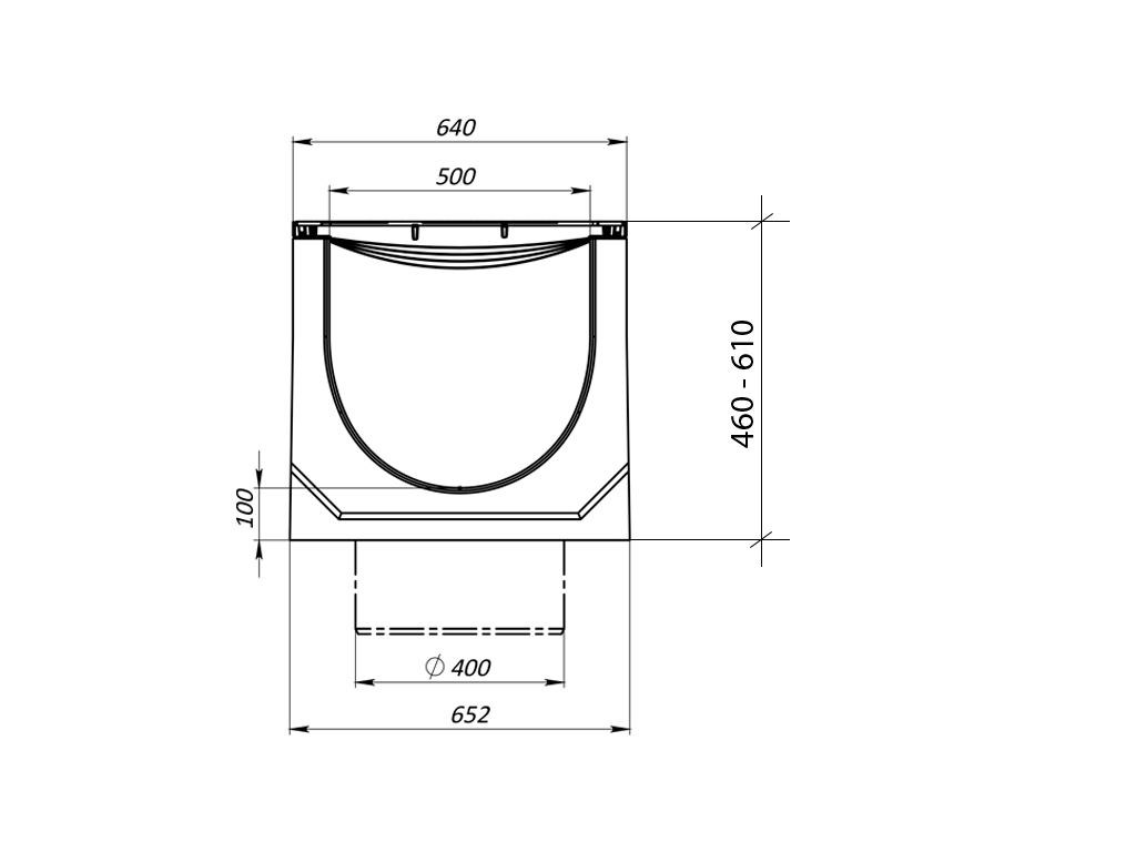
- Lungime: 1000 mm
- Lătime: 640 mm
- Înălțime: 460-610 mm
- Greutate: 510.80 kg
- Potrivit pentru:
Industrial, Drumuri / Poduri, Amenajari urbane
- Ridicare personală depozit: Luni - Vineri / 900-1600
- Firmă curierat: 24/24ore
- Ridicare personală depozit: Luni - Vineri / 900-1600
Rigolă carosabilă MEGA DN500 (H460 - H610 mm) din fibrobeton, cu grătare din fontă ductilă F900
Rigola de drenaj Mega DN500 din fibrobeton este o soluție modernă pentru drenaj eficient în condiții de sarcini cu încărcare extrem de ridicată pe suprafața carosabilă. Datorită grătarelor din fontă de clasa F900 (90 tone) și fibrobeton de înaltă rezistență, canalul suportă sarcini mecanice extreme, făcându-l o alegere fiabilă pentru obiectivele cu exploatare intensă.
Avantaje cheie
-
Fibrobeton de înaltă rezistență: Oferă rezistență la sarcini mecanice, formarea fisurilor și la agenți chimici agresivi (uleiuri, substanțe chimice).
-
Rezistență la îngheț: Canalul rezistă la până la 300 de cicluri de îngheț-dezgheț (clasa F300), menținându-și caracteristicile în condiții de schimbări bruște de temperatură și climă severă.
-
Grătare din fontă F900: Conform standardului EN 1433, rezistă la sarcini de până la 90 de tone, fiind ideale pentru zonele cu trafic intens de vehicule grele.
-
Gamă largă de înălțimi: Canalele sunt disponibile în intervalul de înălțime de la 460 mm la 610 mm, ceea ce permite adaptarea lor la diferite volume de apă pluvială.
-
Pantă interioară: Canalele pot fi fabricate cu o pantă (înclinație) de 5 mm (0,5%) pe fiecare metru, asigurând drenajul eficient chiar și în cazul în care nu se poate realiza o înclinație pe terenul planificat.
-
Dotări cu racorduri verticale: Posibilitatea de a echipa canalele cu un racord vertical pentru conectarea ușoară la rețeaua de canalizare pluvială.
-
Sistem de conectare "mama-tata": Simplifică montajul, prevenind golurile și scurgerile. Pentru o etanșare maximă, se recomandă utilizarea unui ermetic specializat.
-
Durabilitate: Materialele nu sunt susceptibile la coroziune, asigurând o durată de viață îndelungată chiar și în condiții de exploatare dificile.
Aplicații
Canalele de scurgere Mega sunt destinate utilizării pe:
-
Zone industriale și complexe de depozitare.
-
Drumuri cu trafic de vehicule grele.
-
Aeroporturi, terminale logistice și de transport.
-
Obiective de infrastructură de transport (stații de autobuz, platforme de containere).
Completare
-
Canal din fibrobeton.
-
Muchii de ranforsare din oțel galvanizat.
-
Grătare din fontă ductilă.
-
Elemente de fixare.
De ce să alegeți rigolele din seria Mega?
-
Rezistență ridicată și durabilitate a materialelor.
-
Conformitate cu standardele internaționale de calitate și siguranță.
-
Posibilitatea de utilizare în cele mai dificile condiții de exploatare.
-
Fiabilitatea brandului Vodaland, cu o experiență de succes în proiecte de peste 20 de ani la nivel global.
- Industrial
- Drumuri / Poduri
- Amenajari urbane
Recenzii clienți
Spune-ne ce părere ai!
Întrebări & Răspunsuri
0 întrebări și răspunsuri
Abonează-te la canalul nostru —
vei afla multe sfaturi practice și utile despre instalarea produselor noastre!




