Cămin colector din fibrobeton MEGA DN110 H500 cu grătar fontă Е600 (500x187x500)
Cămin colector din fibrobeton MEGA DN110 H500 cu grătar fontă Е600 (500x187x500)
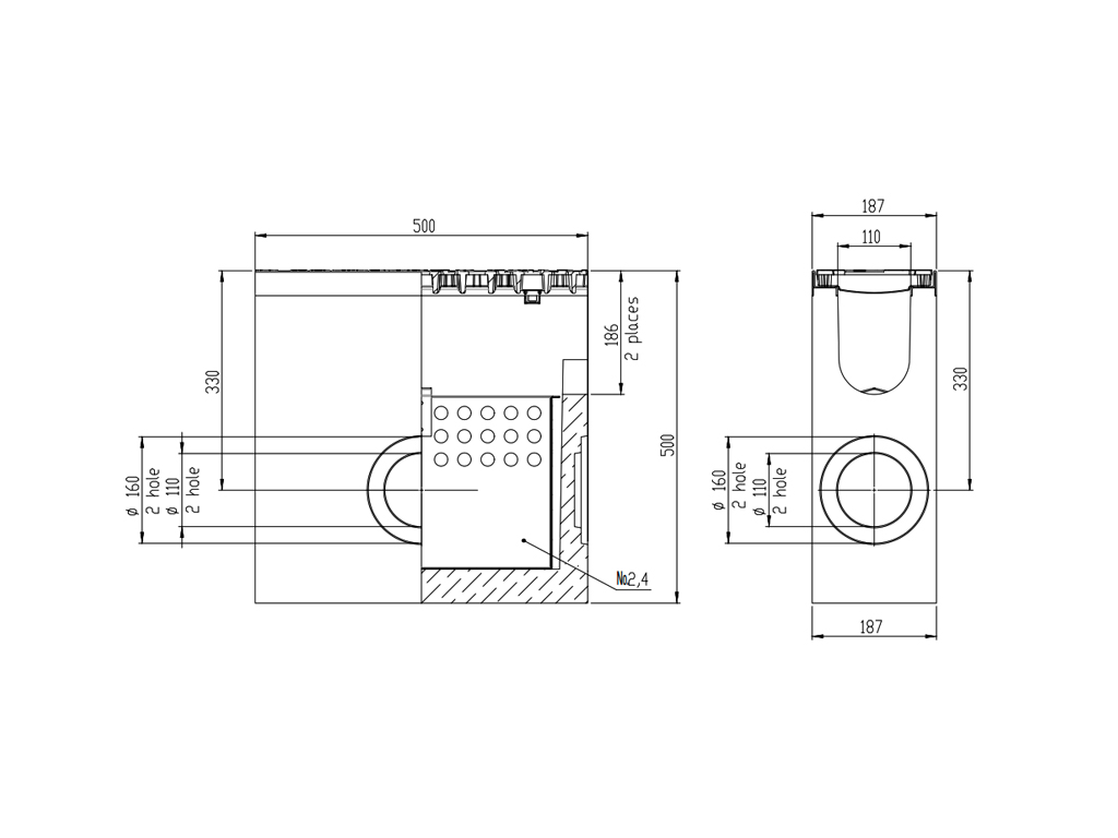
- Lungime: 500 mm
- Lătime: 187 mm
- Înălțime: 500 mm
- Greutate: 65.00 kg
- Potrivit pentru:
Industrial, Drumuri / Poduri, Amenajari urbane
- Ridicare personală depozit: Luni - Vineri / 900-1600
- Firmă curierat: 24/24ore
- Ridicare personală depozit: Luni - Vineri / 900-1600
Cămin colector din fibrobeton MEGA DN110 H500 cu grătar fontă Е600 (500x187x500)
Cămin de drenaj Mega DN110 din fibrobeton este o soluție modernă pentru drenaj eficient în condiții de sarcini cu încărcare ridicată pe suprafața carosabilă. Datorită grătarului din fontă de clasa E600 și fibrobeton de înaltă rezistență, căminul suportă sarcini mecanice extreme, făcându-l o alegere fiabilă pentru obiectivele cu exploatare intensă.
Avantaje cheie
-
Fibrobeton de înaltă rezistență: Oferă rezistență la sarcini mecanice, formarea fisurilor și la agenți chimici agresivi (uleiuri, substanțe chimice).
-
Rezistență la îngheț: Căminul rezistă la până la 300 de cicluri de îngheț-dezgheț (clasa F300), menținându-și caracteristicile în condiții de schimbări bruște de temperatură și climă severă.
-
Grătar din fontă E600: Conform standardului EN 1433, rezistă la sarcini de până la 60 de tone, fiind ideal pentru zonele cu trafic intens de vehicule grele..
-
Dotări: Posibilitatea de a echipa căminul cu coș de aluviuni și racorduri de diferite diametre pentru conectarea ușoară a liniei de rigole prin cămin la rețeaua de canalizare pluvială.
-
Sistem de conectare "mama-tata": Simplifică montajul, prevenind golurile și scurgerile. Pentru o etanșare maximă, se recomandă utilizarea unui ermetic specializat.
-
Durabilitate: Materialele nu sunt susceptibile la coroziune, asigurând o durată de viață îndelungată chiar și în condiții de exploatare dificile.
Aplicații
Căminele de scurgere Mega sunt destinate utilizării pe:
-
Zone industriale și complexe de depozitare.
-
Drumuri cu trafic de vehicule grele.
-
Aeroporturi, terminale logistice și de transport.
-
Obiective de infrastructură de transport (stații de autobuz, platforme de containere).
Completare
-
Cămin din fibrobeton.
-
Muchii de ranforsare din oțel galvanizat.
-
Grătar din fontă ductilă.
-
Elemente de fixare.
De ce să alegeți căminele din seria Mega?
- Oferă conectarea ușoară a liniei de rigole cu rețeaua de canalizare pluvială, servind totodată ca punct de revizie.
-
Rezistență ridicată și durabilitate a materialelor.
-
Conformitate cu standardele internaționale de calitate și siguranță.
-
Posibilitatea de utilizare în cele mai dificile condiții de exploatare.
-
Fiabilitatea brandului Vodaland, cu o experiență de succes în proiecte de peste 20 de ani la nivel global.
- Industrial
- Drumuri / Poduri
- Amenajari urbane
Recenzii clienți
Spune-ne ce părere ai!
Întrebări & Răspunsuri
0 întrebări și răspunsuri
Vă oferim informații utile despre produsele și obiectele ce doriți să le achizitionați în mediul online. Sperăm să vă ajutăm în luarea deciziei. Apelează cu încredere și un consultant te va îndruma exact către produsul de care sigur vei avea nevoie.
Abonează-te la canalul nostru —
vei afla multe sfaturi practice și utile despre instalarea produselor noastre!

