Statie de epurare biologica ape menajere uzate, BioLine SBR-20, debit 20 m3/24 ore
Cod produs SEB-SBR20
Statie de epurare biologica ape menajere uzate, BioLine SBR-20, debit 20 m3/24 ore
Cod produs: SEB-SBR20
Nu este in stoc
0.00 Lei (TVA 20% inclus)
Debitul/lociutori SE SBR
- 7,5m3/24ore (până la 50)
- 8,0m3/24ore (până la 54)
- 9,0m3/24ore (până la 60)
- 10,0m3/24ore (până la 67)
- 15,0m3/24ore (până la 100)
- 25,0m3/24ore (până la 167)
- 30,0m3/24ore (până la 200)
- 35,0m3/24ore (până la 234)
- 40,0m3/24ore (până la 267)
- 45,0m3/24ore (până la 300)
- În stoc
- Cod produs: SEB-SBR20
- Greutate: 0.00 kg
- Potrivit pentru:
Rezidential, Industrial, Retele de canalizare
Testat și certificat – Fiabilitatea produsului dat este confirmată de un laborator independent.
Găsiți declarația de performanță la «⬇Documente Tehnice».
- Ridicare personală depozit: Luni - Vineri / 900-1600
- Firmă curierat: 24/72ore
Descriere
Statiile de epurare biologica Rainpark de tip SBR sunt bazate pe tehnlogia de epurare “Sequencing Batch Reactor” sau reactor biologic cu alimentare secventiala. O statie de epurare Rainpark SBR poate fi fabricata cu debite cuprinse intre 0,75 - 50 m3/24 ore (sau debite mai mari) fiind o solutie optimala si eficienta pentru epurarea apelor menajere uzate provenite de la locuinte individuale, scoli, gradinite, localitati mici sau mari.
Statiile de epurare Rainpark de tip SBR functioneaza complect automatizat, iar datorita functionarii secventiale consumul de energie electrica este redus. Fluctuatiile de debit nu mai sunt o problema pentru procesul de epurare biologica corect - statia de tip SBR controleaza debitul si regleaza procesul de epurare in mod automat.
Epurarea biologică a apelor uzate menajere este cea mai bună soluție pentru zonele în care nu există racordare la o rețea de canalizare centralizată. Stațiile de epurare biologică sunt fiabile și ecologice.
Beneficii :
-Greutate redusă a produsului;
-Rezistență la coroziune;
-Etanşietate;
-Durata de viață este de peste 50 de ani!
-Produsele sunt certificate în Republica Moldova;
-Gradul de purificare a apei după SEB - până la 99%;
-Nu necesită adăugarea de bacterii;
-Scheme de conectare dezvoltate pentru orice condiții;
-Posibilitatea dezinfectării apelor uzate folosind metode moderne;
-Nu dăunează mediului
Statiile de epurare Rainpark de tip SBR functioneaza complect automatizat, iar datorita functionarii secventiale consumul de energie electrica este redus. Fluctuatiile de debit nu mai sunt o problema pentru procesul de epurare biologica corect - statia de tip SBR controleaza debitul si regleaza procesul de epurare in mod automat.
Epurarea biologică a apelor uzate menajere este cea mai bună soluție pentru zonele în care nu există racordare la o rețea de canalizare centralizată. Stațiile de epurare biologică sunt fiabile și ecologice.
Beneficii :
-Greutate redusă a produsului;
-Rezistență la coroziune;
-Etanşietate;
-Durata de viață este de peste 50 de ani!
-Produsele sunt certificate în Republica Moldova;
-Gradul de purificare a apei după SEB - până la 99%;
-Nu necesită adăugarea de bacterii;
-Scheme de conectare dezvoltate pentru orice condiții;
-Posibilitatea dezinfectării apelor uzate folosind metode moderne;
-Nu dăunează mediului
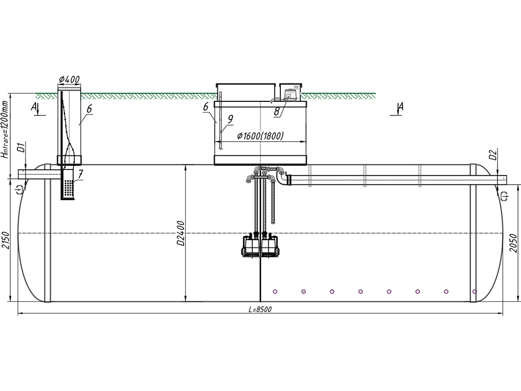
Corpul statiilor de epurare este fabricat din poliesteri armati cu fibra de sticla (PAFS) si este 100% ermetic, poseda proprietate autoportanta (nu necesita armare suplimentara si rezista la sarcinile solului), rezistent la coroziune, durata de viata a corpului fabricat din poliesteri armati cu fibra de sticla - minim 50 ani.
Debitul stației de epurare este calculat luand în considerație normă maximă de consum pentru un locuitor care este egală cu 150 litri/24ore. În dependență de consumul real pe locuitor/24ore, parametri stației de epurare pot fi diferiți.
Pentru detalii apelați managerul de proiecte, Radu Gheorghiță, tel. +37368930301 (Viber, WhatsApp, Skype).
Accesorii compatibile cu acest produs
Din aceeasi categorie
Caracteristici
Dimensiuni
Greutate
0.00 kg
Material
Poliester armat cu fibra de sticla
Tip
Orizontal
Productivitatea, m3/zi:
20,0
Numărul de locuitori echivalenți, max:
133
Putere compresor, W
1850
Diametrul interior, mm
2400
Diametrul țevii la intrare/ieșire, mm
160-200
Domenii de aplicare
- Rezidential
- Industrial
- Retele de canalizare
Nu te-ai hotarat inca?Compara-l cu alte produse similare | ![]() Statie de epurare biologica ape menajere uzate, BioLine SBR-12,5 debit 12,5 m3/24 ore | ![]() Statie de epurare biologica ape menajere uzate, BioLine SBR-20, debit 20 m3/24 ore | ![]() Statie de epurare biologica ape menajere uzate, BioLine SBR-7,5, debit 7,5 m3/24 ore |
| Material | Poliester armat cu fibra de sticla | Poliester armat cu fibra de sticla | Poliester armat cu fibra de sticla |
| Tip | Orizontal | Orizontal | Orizontal |
| Productivitatea, m3/zi: | 12-5 | 20,0 | 7-5 |
| Numărul de locuitori echivalenți, max: | 84 | 133 | 50 |
| Putere compresor, W | 980 | 1850 | 890 |
| Diametrul interior, mm | 2000 | 2400 | 2000 |
| Diametrul țevii la intrare/ieșire, mm | 160-200 | 160-200 | 160-200 |
| Debitul/lociutori SE SBR | 7,5m3/24ore (până la 50) | ||
| 0.00Lei | 0.00Lei | 0.00Lei | |
Produse de sezon
Recenzii clienți
Spune-ne ce părere ai!
Întrebări & Răspunsuri
0 întrebări și răspunsuri
Abonează-te la canalul nostru —
vei afla multe sfaturi practice și utile despre instalarea produselor noastre!
YouTube





